THE PRESTON
SPECIFICATIONS
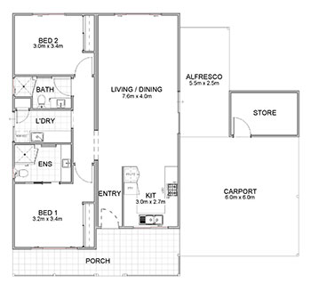
Bed: 2 | Bath: 2
>>>AVAILABLE TO VIEW AT NORTHAM DISPLAY VILLAGE
- Approx. 169m² of total living, including carport, porch, store and alfresco
- Living area, tiled & bedrooms, carpeted
- Roof and external walls fully insulated
- Stainless steel electric oven, cook top & range hood
- Energy efficient hot water system
- Solid core front & laundry doors with Gainsborough entry lock set including deadlocks
- Jason Windows & sliding doors with keylocks & flyscreens
- 2,425mm ceilings with classic cornices
- Native landscaping to front
- Open wire-and-post rural-style fencing
- Industry best 10-year structural guarantee
NORTHAM DISPLAY VILLAGE
MAKE AN APPOINTMENT TO VIEW:
Call us today on (08) 6454 0919 or email sales@modularwa.com.au to arrange an appointment to view our Northam Display Homes.


