Light leads the way through this design, flowing through seamlessly on entry.
The Napier instils awe into everyday living, balancing luxury, form, and function.
The Napier instils awe into everyday living, balancing luxury, form, and function.
ROOMS
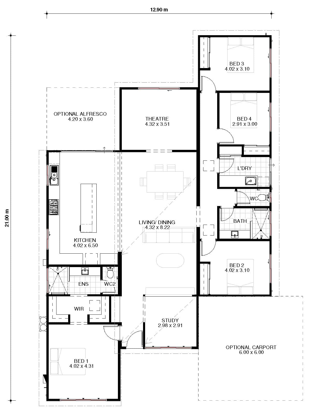
4 x bed, 2 x bath, study, theatre, open living space with kitchen, ensuite and main bath with separate WC for added privacy.
AREA
191m2
OVERALL DIMENSIONS
12.9m x 21m
No appointment required to view:
31 Challenge Blvd, Wangara WA 6065 – View Open Hours
- Site inspection and assessment
- 10-year structural warranty
- *Geotechnical, Energy Efficiency, Contour & Feature Surveys
- *BAL Bushfire Report
- Building Permit application and fees included
- Home Owner’s indemnity insurance policy
- Delivery within 200km of MWA premises
- Engineered concrete floor base and 90mm steel frames
- Standard wall and roof insulation
- Includes fully painted exterior and interiors
- Selection of standard claddings
- Selection of standard fixtures and fittings
- Stainless Steel Westinghouse Appliances
- Built-in robes included
- Tiling to all wet areas
- Locally made custom kitchen cabinetry & laminate benchtops
For a full summary of all Standard Inclusions – contact us today.
*If required and included as per your Preliminary Agreement, based on individual client and project-specific requirements. Please refer to your quotation for further information
The following items are not included in our Standard Specification.
- DISPLAY UPGRADES:
COMING SOON - Please ask your sales consultant for more infomation.







