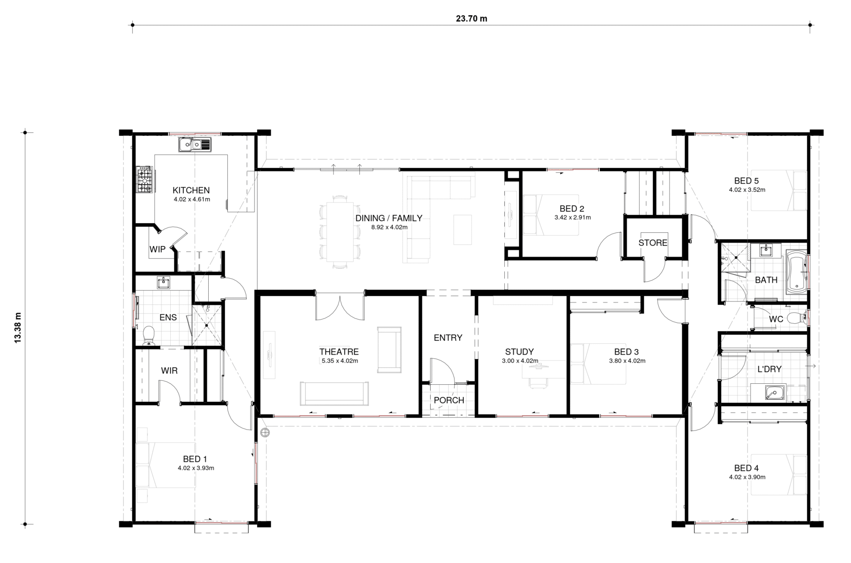
Designed for modern farm life and inspired by Scandinavian barn-style aesthetics, The Stirling features an expansive layout perfect for families who need more space.
ROOMS
5 x bed, 2 x bath, study, theatre, store, open living space with kitchen, ensuite and main bath with separate WC for added privacy.
AREA
230m2
OVERALL DIMENSIONS
23.7m x 13.38m
No appointment required to view:
31 Challenge Blvd, Wangara WA 6065 – View Open Hours
- Site inspection and assessment
- 10-year structural warranty
- *Geotechnical, Energy Efficiency, Contour & Feature Surveys
- *BAL Bushfire Report
- Building Permit application and fees included
- Home Owner’s indemnity insurance policy
- Delivery within 200km of MWA premises
- Engineered concrete floor base and 90mm steel frames
- Standard wall and roof insulation
- Includes fully painted exterior and interiors
- Selection of standard claddings
- Selection of standard fixtures and fittings
- Stainless Steel Westinghouse Appliances
- Built-in robes included
- Tiling to all wet areas
- Locally made custom kitchen cabinetry & laminate benchtops
For a full summary of all Standard Inclusions – contact us today.
*If required and included as per your Preliminary Agreement, based on individual client and project-specific requirements. Please refer to your quotation for further information
The following items are not included in our Standard Specification.
- ELEVATE – EXCLUSIVE UPGRADES:
COMING SOON - Please ask your sales consultant for more infomation.







