THE MURRAY
SPECIFICATIONS
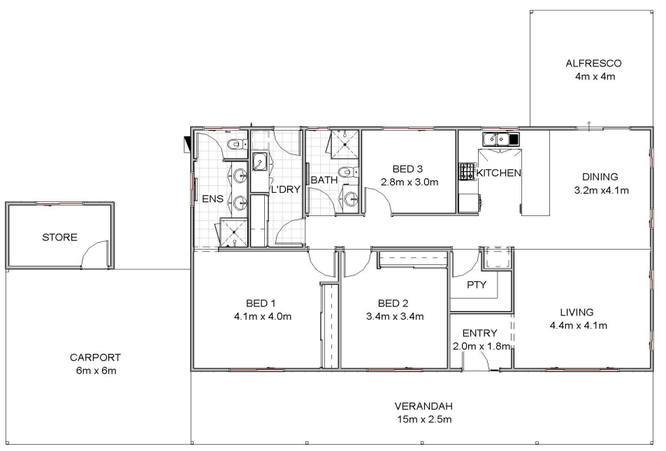
Bed: 3 | Bath: 2
>>>AVAILABLE TO VIEW AT NORTHAM DISPLAY VILLAGE
Approx. 224m² of total living, including carport, porch, verandah store and alfresco
Living area, tiled & bedrooms, carpeted
Roof and external walls fully insulated
Stainless steel electric oven, cook top & range hood
Energy efficient hot water system
Solid core front & laundry doors with Gainsborough entry lock set including deadlocks
Jason Windows & sliding doors with keylocks & flyscreens
2,425mm ceilings with classic cornices
Native landscaping to front
Open wire-and-post rural-style fencing
Industry best 10-year structural guarantee
Verandah to the front of the house only
NORTHAM DISPLAY VILLAGE
MAKE AN APPOINTMENT TO VIEW:
Call us today on (08) 6454 0919 or email sales@modularwa.com.au to arrange an appointment to view our Northam Display Homes.


